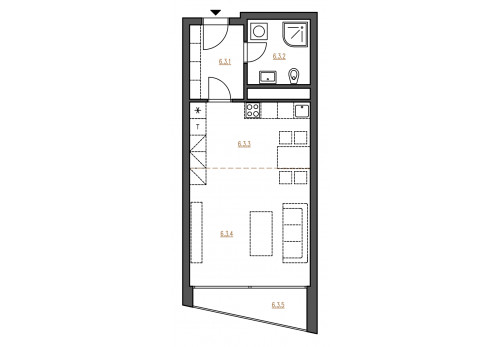
Byt 6.3

Označení
6.3
Podlaží
6. NP
Dispozice
1+kk
Výměra
40,7 m²
Parkování
Možnost přikoupit
Dostupnost
Prodáno
Číslo Název Velikost
6.3.1 zádveří 5,3 m²
6.3.2 koupelna 5,0 m²
6.3.3 kuchyňský kout 10,6 m²
6.3.4 pokoj 18,9 m²
6.3.5 terasa 4,6 m²

Gefest design concept

Nemáte představu, jak váš vysněný byt vybavit?

Tento problém jsme vyřešili za vás a vytvořili zcela nový nástroj, který vám umožní designovat váš byt do vámi vysněného stylu.

Sjednejte si schůzku s naším makléřem a zjištěte, jak by mohl váš nový byt vypadat.

Sjednat schůzku

Napište nám

Pole označená * jsou povinná
Tyto stránky jsou chráněny službou reCAPTCHA a platí Zásady ochrany osobních údajůSmluvní podmínky společnosti Google.